
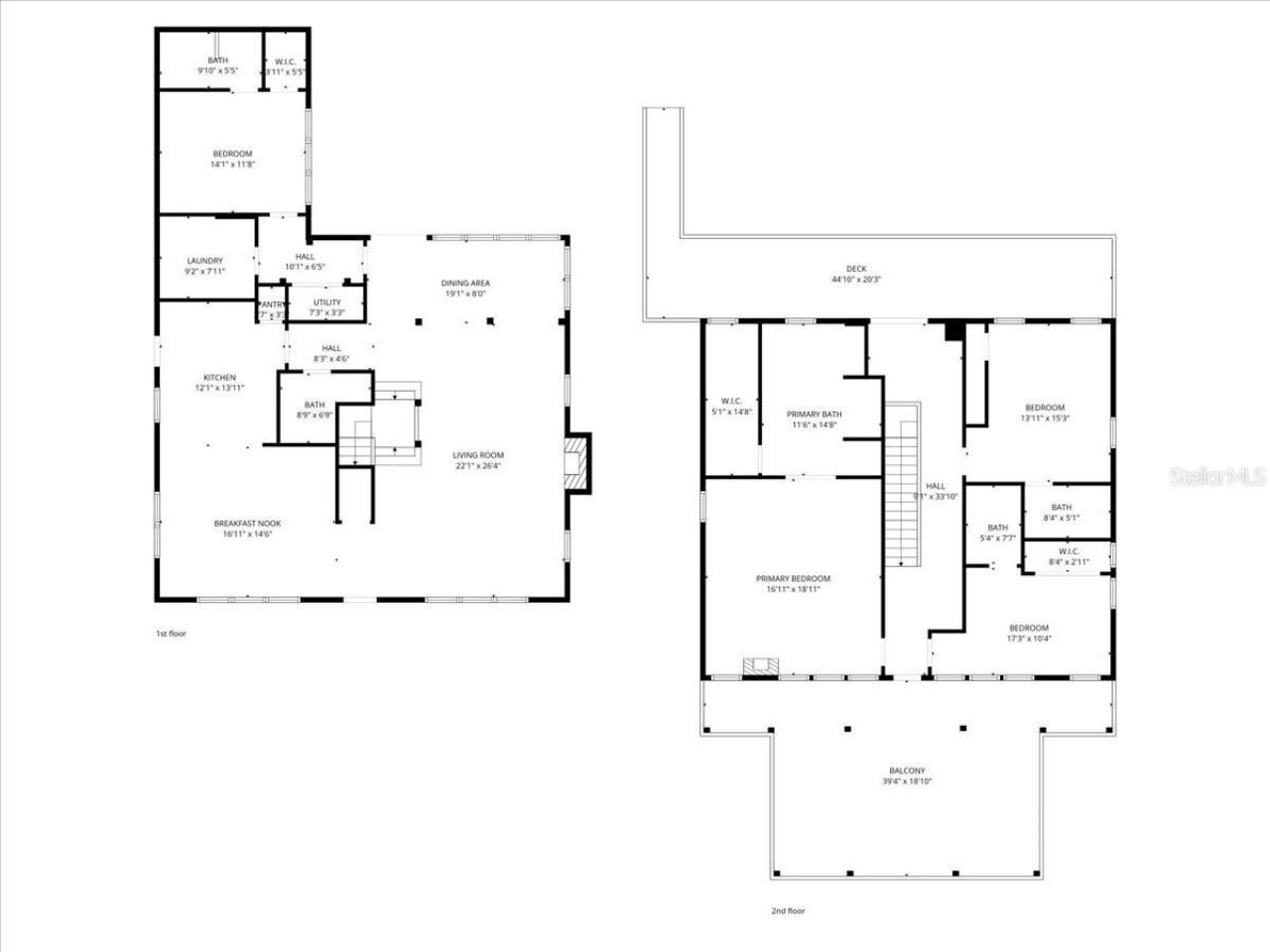
Formerly known as the iconic Bokeelia Tarpon Inn featuring 4 bedrooms, 5 bathrooms and may be purchased TURN-KEY. This historic estate blends early 1900s character with over $1 MILLION in high-end upgrades. PLUS, This home qualifies for 100% Bonus Depreciation on FF&E values!! Located on the northern tip of Pine Island, where the views simply do not get better. Enjoy water views from nearly every window in the home. Primary has Panoramic Views of Charlotte Harbor! With 2 BOAT SLIPS and lift acce...Formerly known as the iconic Bokeelia Tarpon Inn featuring 4 bedrooms, 5 bathrooms and may be purchased TURN-KEY. This historic estate blends early 1900s character with over $1 MILLION in high-end upgrades. PLUS, This home qualifies for 100% Bonus Depreciation on FF&E values!! Located on the northern tip of Pine Island, where the views simply do not get better. Enjoy water views from nearly every window in the home. Primary has Panoramic Views of Charlotte Harbor! With 2 BOAT SLIPS and lift access, you'll have quick and easy entry into Charlotte Harbor, Matlacha Pass, and the Gulf. Stepping into the home, the grand front entrance offers a massive covered sitting space, a perfect place to soak in the sunshine, coastal breezes, and peaceful waterfront scenery. Vintage charm greets you at every turn, beautifully preserved and enhanced with thoughtful modern updates. Natural light fills the home, creating a bright and airy feel throughout. The gourmet kitchen is a true showpiece, featuring a Big Chill refrigerator and gas range with unlacquered brass hardware, a designer industrial Zephyr ventilation hood, and a brass pot filler for added convenience. Brick flooring is laid in a classic herringbone pattern, while dramatic soapstone countertops elevate the space. The open-concept living area showcases porcelain tile flooring and a stunning touchstone built-in electric fireplace. Just off the main living area, the laundry room adds convenience. Enjoy garden views from the only downstairs guest bedroom. Upstairs, solid wood flooring and custom hardwood stair treads maintain the home's historic integrity. You will find the expansive primary suite features vaulted ceilings and a cozy revolution, built-in electric fireplace. The spa-inspired primary bath offers water jet-cut marble mosaic tile on the vanity wall, shower inset, and shower floor, a freestanding soaking tub with a Kingston Brass floor-mounted tub filler and hand shower, and custom solid wood cabinetry beneath quartz countertops. Additional Features include: 2 A/C units, spray foam insulation, a walkable attic with additional storage, a high-efficiency tankless water heater, a permanently installed Generac standby generator, a HOOT aerobic septic system, ELECTRIC HURRICANE protection, and Kevlar protection for the upstairs lanai. The exterior is equally impressive with James Hardie shake siding, all-new Azek decking, railings, and stairs, and a custom-built pergola with electric. The oversized lot is beautifully landscaped with mature fruit trees along with a coral fountain surrounded by a rose garden. You are just minutes from world-class boating and fishing destinations including Boca Grande Pass and Cayo Costa. You're also close to the Bokeelia Fishing Pier, charming island dining, Pine Island Center, and everything that makes Pine Island such a peaceful and desirable coastal community. With breathtaking water views, historic significance, luxury finishes, and unmatched zoning flexibility, this is truly a one-of-a-kind investment and lifestyle opportunity.
View MoreCourtesy of
Agency Name: SELLSTATE VISION REALTY
Agency Contact: 941-807-4304
Agent Name: Savannah Zarris
Presented by
Agent Name: Lucia Firmani
Agent Phone: 305.303.8524
Agency Title: The Keyes Company
Request Info
Send an email with a link to
8241 Main Street, Bokeelia, FL 33922.
Email 8241 Main Street, Bokeelia, FL 33922
Thank you for your inquiry! As a thank you, we have a Special Mortgage Offer for You.
We would like to provide you a free, no-obligation, home loan pre-approval review.